【愛知県春日井市】春日井市十三塚町120坪工場
物件概要
最終更新日:2025年11月19日
- 用途
- 工場
- 所在地
-
愛知県春日井市十三塚町
GoogleMap - 交通
-
東名高速道路 春日井より 約1.00km
JR中央本線(名古屋~塩尻) 神領駅※交通の距離または徒歩圏内の情報は目安となります。
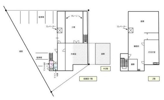
- 賃貸階数
- 1-2階
- 賃貸面積
- 約120 坪 (約410 ㎡)
- 月額賃料(税抜)
-
お問合せください
- 引き渡し時期
-
相談
物件のポイント
- IC5km以内
物件詳細
- 取引形態
- 媒介(他社)
- 建物面積
- 約120 坪 ( 約410 ㎡)
- 建物階数
- 2階建
- 築年月
- 1980年12月 (築44年)
- 都市計画区域/用途地域
- 準工業地域
- 敷金/保証金
- お問合せください
- 敷引/償却
- お問合せください
- 礼金
- お問合せください
- 備考
-
契約年数:2年
設備
●
●
―
●
―
―
―
●
●
●
―
―
- 荷捌場
- -
- 天井高
- -
- 床荷重 (t/㎡)
- -
- 昇降設備
(種類/数×耐荷重kg) - EV(荷物用)/1
- 駐車場
- 有り / 3台分以上
