【愛知県名古屋市西区】名古屋市西区上小田井2丁目179坪倉庫
物件概要
最終更新日:2025年10月30日
- 用途
- 倉庫
- 所在地
- 
                                    愛知県名古屋市西区上小田井2-140
                                                                            
 GoogleMap
- 交通
- 
                                        名古屋第二環状自動車道 山田西より 約1.20km
 名鉄犬山線 中小田井駅 <徒歩圏内>※交通の距離または徒歩圏内の情報は目安となります。 
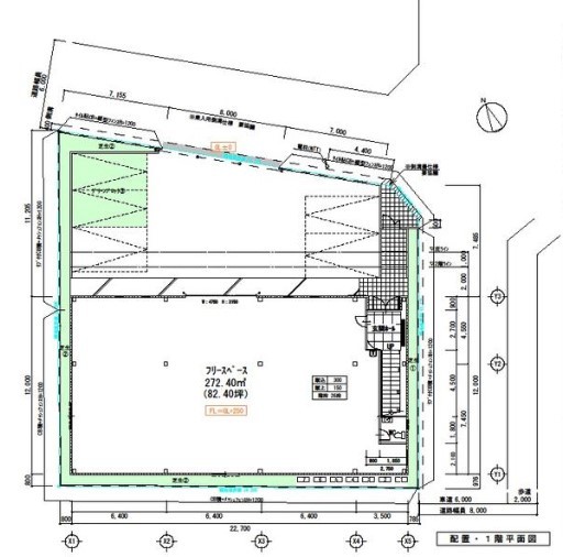
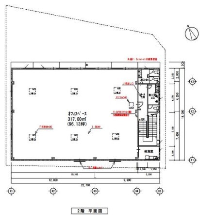
- 賃貸階数
- 1-2階
- 賃貸面積
- 178.53 坪 (590.20 ㎡)
- 月額賃料(税抜)
- 
                                        1,800,000円(坪単価@10,083円)
- 引き渡し時期
- 
                                        2026年1月 上旬 以降
物件のポイント
- IC5km以内
- 駅徒歩圏
- 空調
物件詳細
- 取引形態
- 媒介(他社)
- 建物面積
- 178.53 坪 ( 590.20 ㎡)
- 建物階数
- 2階建
- 築年月
- 2022年09月 (築3年)
- 都市計画区域/用途地域
- 準工業地域
- 敷金/保証金
- 18,000,000円
- 敷引/償却
- -
- 礼金
- -
- 備考
設備
                                                            ●
                                                    
                    
                                                            ●
                                                    
                    
                                                            ―
                                                    
                    
                                                            ―
                                                    
                    
                                                            ―
                                                    
                    
                                                            ―
                                                    
                    
                                                            ●
                                                    
                    
                                                            ●
                                                    
                    
                                                            ―
                                                    
                    
                                                            ●
                                                    
                    
                                                            ―
                                                    
                    
                                                            ―
                                                    
                    - 荷捌場
- -
- 天井高
- 天高/ 1F:3.25m, 2F:2.7m
- 床荷重 (t/㎡)
- 1F:5.00t/㎡, 2F:0.30t/㎡
- 昇降設備
 (種類/数×耐荷重kg)
- -
- 駐車場
- 有り / 前面空地