【千葉県船橋市葛飾町】船橋伍代倉庫
※本物件は成約済みです。
物件概要
最終更新日:2025年11月04日
- 用途
- 倉庫
- 所在地
- 千葉県船橋市葛飾町
- 賃貸面積
-
約200 坪 |約500 ㎡
物件詳細
- 取引形態
- 貸主
- 建物面積
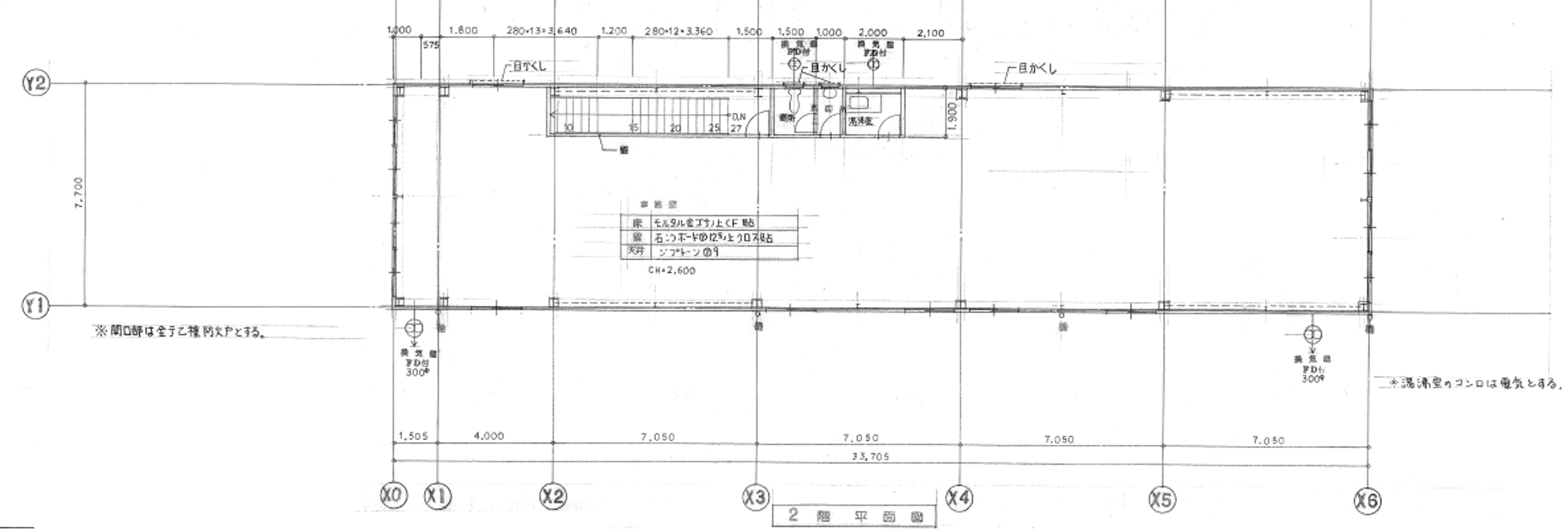
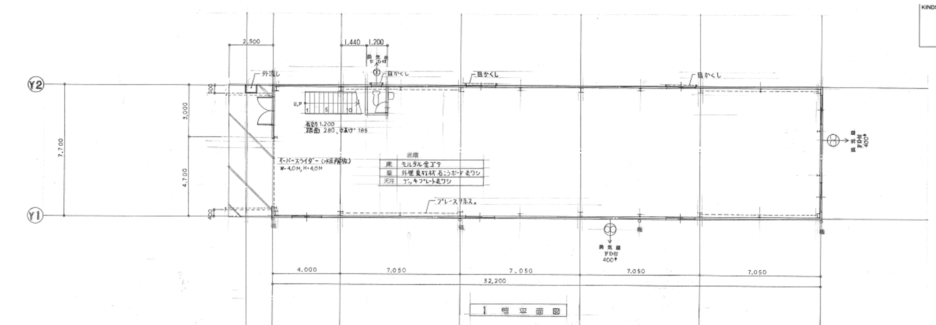
- 約200 坪 ( 約500 ㎡)
- 建物階数
- 2階建
- 築年月
- 1995年07月 (築30年)
- 都市計画区域/用途地域
- 第一種住居地域
設備
●
●
●
―
―
―
―
●
―
●
―
―
- 荷捌場
- 2トン車可
- 天井高
- -
- 床荷重 (t/㎡)
- 2F:0.50t/㎡
- 昇降設備
(種類/数×耐荷重kg) - -
- 駐車場
- -
