【千葉県千葉市稲毛区】千葉市稲毛区六方町220坪倉庫
物件概要
最終更新日:2026年03月11日
- 用途
- 工場
- 所在地
-
千葉県千葉市稲毛区六方町
GoogleMap - 交通
-
東関東自動車道 千葉北より 約3.80km
JR総武本線 四街道駅※交通の距離または徒歩圏内の情報は目安となります。
- 賃貸階数
- 1-2階
- 賃貸面積
-
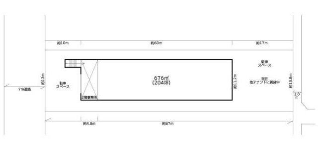
約220 坪 |約730 ㎡
- 月額賃料(税抜)
-
お問合せください
- 引き渡し時期
-
2026年4月 中旬 以降
物件のポイント
- IC5km以内
物件詳細
- 取引形態
- 媒介
- 建物面積
- 約220 坪 ( 約730 ㎡)
- 建物階数
- 2階建
- 築年月
- 1970年08月 (築55年)
- 都市計画区域/用途地域
- 準工業地域
- 敷金/保証金
- お問合せください
- 敷引/償却
- お問合せください
- 礼金
- お問合せください
- 備考
-
契約年数:3年
設備
●
―
―
●
―
―
―
●
―
―
―
―
- 荷捌場
- -
- 天井高
- -
- 床荷重 (t/㎡)
- -
- 昇降設備
(種類/数×耐荷重kg) - -
- 駐車場
- 有り
