【千葉県野田市】野田市木間ケ瀬370坪倉庫
おすすめコメント
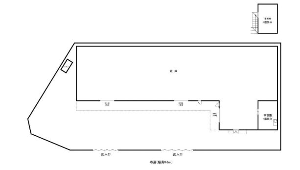
1階:354.38坪 2階:16.33坪(事務所)
物件概要
最終更新日:2025年11月27日
- 用途
- 倉庫
- 所在地
-
千葉県野田市木間ケ瀬
GoogleMap - 交通
-
圏央道 幸手より 約9.70km
東武野田線 川間駅※交通の距離または徒歩圏内の情報は目安となります。
- 賃貸階数
- 1階
- 賃貸面積
-
約370 坪 |約1,230 ㎡
- 月額賃料(税抜)
-
お問合せください
- 引き渡し時期
-
即入居
物件のポイント
- 平屋使い可
- 即入居可
物件詳細
- 取引形態
- 媒介
- 建物面積
- 約370 坪 ( 約1,230 ㎡)
- 建物階数
- 平屋建
- 築年月
- -
- 都市計画区域/用途地域
- 市街化調整区域
- 敷金/保証金
- お問合せください
- 敷引/償却
- お問合せください
- 礼金
- お問合せください
- 備考
-
契約年数:3年
設備
●
●
―
―
―
―
―
●
―
●
―
―
- 荷捌場
- -
- 天井高
- 天高/ 1F:5.79m~約6.64m
- 床荷重 (t/㎡)
- -
- 昇降設備
(種類/数×耐荷重kg) - -
- 駐車場
- -
