【兵庫県神戸市中央区】神戸市中央区港島中町1丁目720坪倉庫
物件概要
最終更新日:2025年10月15日
- 用途
- 倉庫
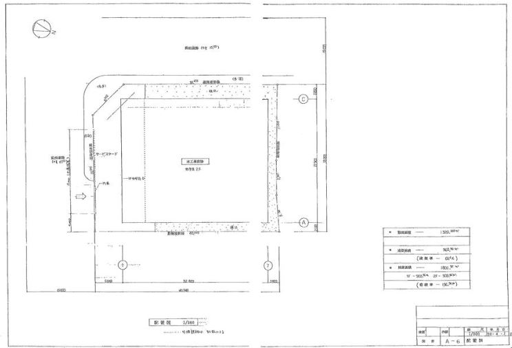
- 所在地
-
兵庫県神戸市中央区港島中町
GoogleMap - 交通
-
阪神高速3号神戸線 京橋(兵庫県)より 約2.30km
ポートライナー 中公園駅 <徒歩圏内>※交通の距離または徒歩圏内の情報は目安となります。
- 賃貸階数
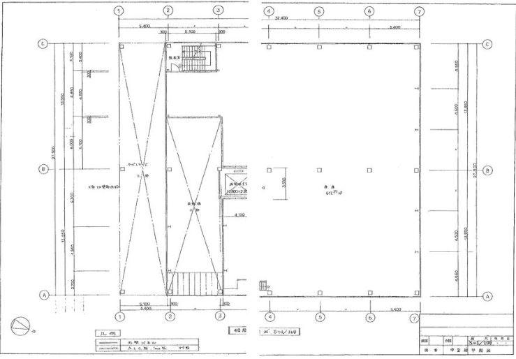
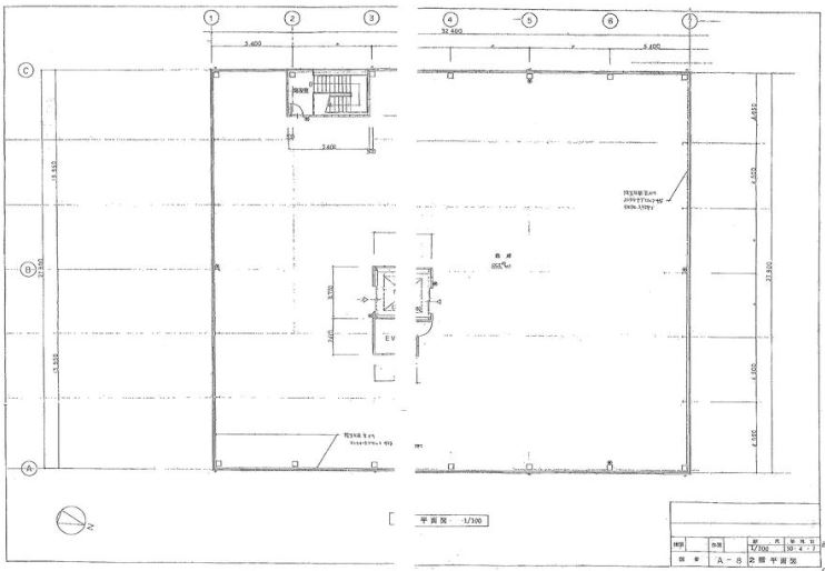
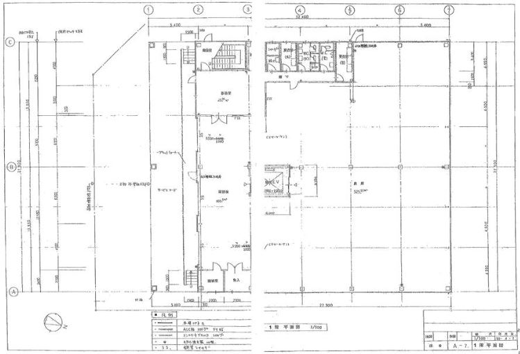
- 1-2階
- 賃貸面積
- 約720 坪 (約2,360 ㎡)
- 月額賃料(税抜)
-
お問合せください
- 引き渡し時期
-
即入居
物件のポイント
- IC5km以内
- 駅徒歩圏
- 即入居可
- 高床
物件詳細
- 取引形態
- 媒介(他社)
- 建物面積
- 約720 坪 ( 約2,360 ㎡)
- 建物階数
- 2階建
- 築年月
- 1991年01月 (築34年)
- 都市計画区域/用途地域
- 準工業地域
- 敷金/保証金
- お問合せください
- 敷引/償却
- お問合せください
- 礼金
- お問合せください
- 備考
設備
―
―
―
―
●
―
―
●
―
―
―
―
- 荷捌場
- -
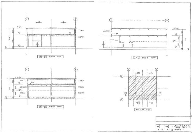
- 天井高
- 梁下有効高/ 1F:3.3m, 2F:中2F:2.75m、2F:2.9m
- 床荷重 (t/㎡)
- -
- 昇降設備
(種類/数×耐荷重kg) - EV(荷物用)/1×2,000kg
- 駐車場
- 有り / 無料
