- トップ
- 神奈川県
- 横浜・川崎内陸エリア
- 横浜市都筑区
- 【神奈川県横浜市都筑区】インター81
【神奈川県横浜市都筑区】インター81
※本物件は成約済みです。
物件概要
最終更新日:2024年04月03日
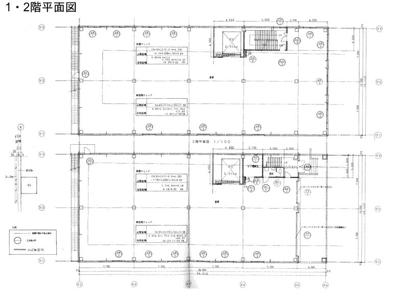
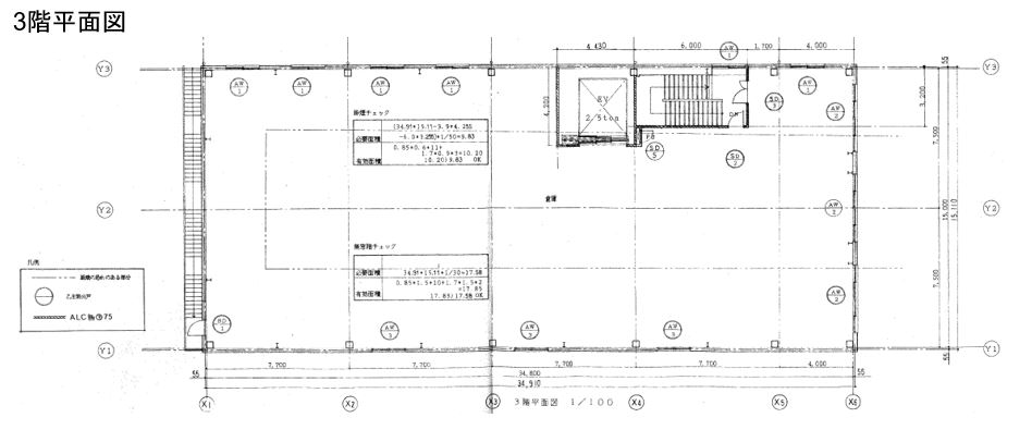
- 用途
- 倉庫
- 所在地
- 神奈川県横浜市都筑区川向町
- 賃貸面積
-
約500 坪 |約1,500 ㎡
物件詳細
- 取引形態
- 貸主
- 建物面積
- 約500 坪 ( 約1,500 ㎡)
- 建物階数
- 3階建
- 築年月
- 1993年08月 (築32年)
- 都市計画区域/用途地域
- 工業地域
設備
―
●
●
―
●
―
―
●
―
●
●
―
- 荷捌場
- 4トン車可
- 天井高
- -
- 床荷重 (t/㎡)
- 1F:1.00t/㎡, 2F:1.00t/㎡, 3F:1.00t/㎡
- 昇降設備
(種類/数×耐荷重kg) - EV(荷物用)/1
- 駐車場
- -
