- トップ
- 神奈川県
- 横浜・川崎内陸エリア
- 川崎市幸区
- 【神奈川県川崎市幸区】南加瀬倉庫82
【神奈川県川崎市幸区】南加瀬倉庫82
※本物件は成約済みです。
物件概要
最終更新日:2025年02月13日
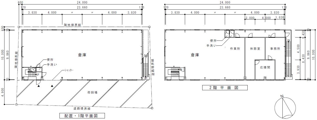
- 用途
- 倉庫
- 所在地
- 神奈川県川崎市幸区南加瀬
- 賃貸面積
-
約100 坪 |約500 ㎡
物件詳細
- 取引形態
- 貸主
- 建物面積
- 約100 坪 ( 約500 ㎡)
- 建物階数
- 2階建
- 築年月
- 1983年07月 (築42年)
- 都市計画区域/用途地域
- 準工業地域
設備
●
●
●
―
―
―
―
●
―
●
―
●
- 荷捌場
- 4トン車可
- 天井高
- -
- 床荷重 (t/㎡)
- -
- 昇降設備
(種類/数×耐荷重kg) - -
- 駐車場
- -
