【神奈川県相模原市緑区】橋本19
※本物件は成約済みです。
物件概要
最終更新日:2024年06月07日
- 用途
- 倉庫
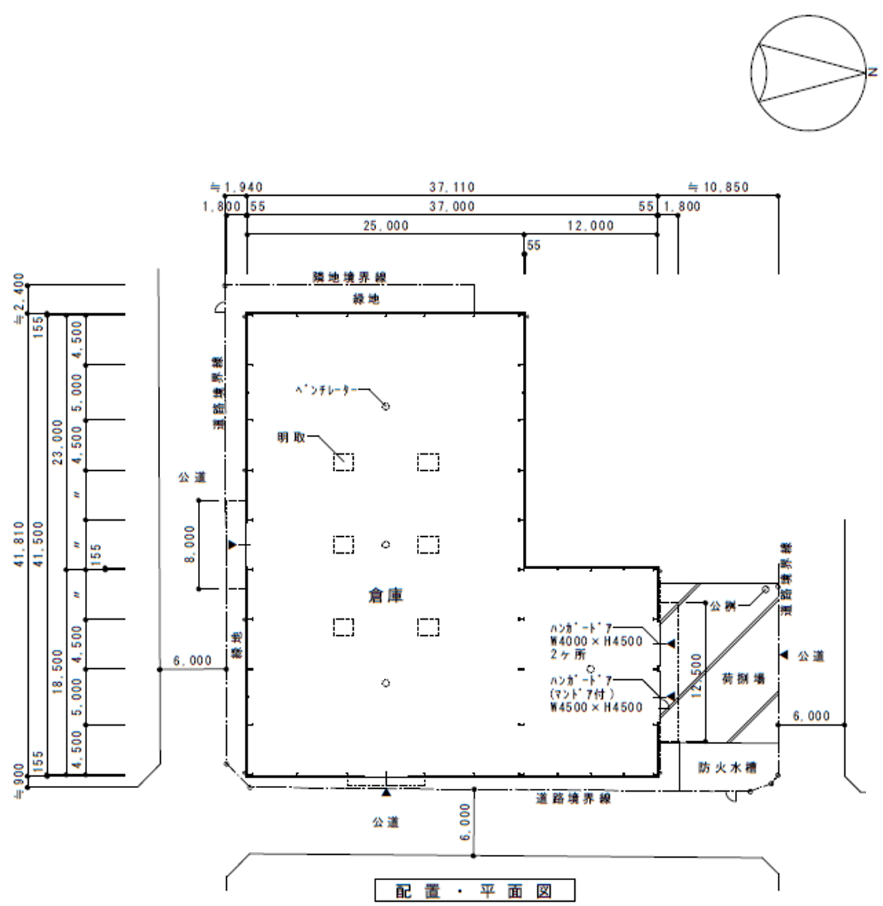
- 所在地
- 神奈川県相模原市緑区橋本台
- 賃貸面積
-
約400 坪 |約1,300 ㎡
物件詳細
- 取引形態
- 貸主
- 建物面積
- 約400 坪 ( 約1,300 ㎡)
- 建物階数
- 平屋建
- 築年月
- 1976年01月 (築50年)
- 都市計画区域/用途地域
- 工業地域
設備
―
―
●
―
―
―
―
●
―
●
●
―
- 荷捌場
- 10トン車可
- 天井高
- 軒高/ 1F:5.7m
- 床荷重 (t/㎡)
- -
- 昇降設備
(種類/数×耐荷重kg) - -
- 駐車場
- -
