【神奈川県厚木市】厚木市岡田100坪倉庫
物件概要
最終更新日:2025年11月05日
- 用途
- 倉庫
- 所在地
-
神奈川県厚木市岡田
GoogleMap - 交通
-
東名高速道路 厚木より 約0.60km
JR相模線 社家駅※交通の距離または徒歩圏内の情報は目安となります。
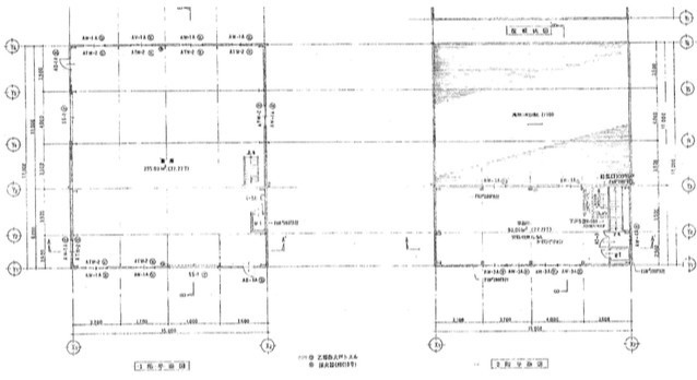
- 賃貸階数
- 1-2階
- 賃貸面積
- 約100 坪 (約350 ㎡)
- 月額賃料(税抜)
-
お問合せください
- 引き渡し時期
-
2026年3月 以降
物件のポイント
- IC5km以内
- 大型通行
物件詳細
- 取引形態
- 媒介(他社)
- 建物面積
- 約100 坪 ( 約350 ㎡)
- 建物階数
- 2階建
- 築年月
- 1992年03月 (築33年)
- 都市計画区域/用途地域
- 準工業地域
- 敷金/保証金
- お問合せください
- 敷引/償却
- お問合せください
- 礼金
- お問合せください
- 備考
設備
―
●
―
―
―
―
―
●
―
●
●
●
- 荷捌場
- -
- 天井高
- -
- 床荷重 (t/㎡)
- -
- 昇降設備
(種類/数×耐荷重kg) - -
- 駐車場
- 有り / 無料
