【大阪府大東市】大東市御領3丁目300坪倉庫(寄託)

おすすめコメント
★最寄りの交通機関★
JR学研都市線「住道」駅
大阪メトロ長堀鶴見緑地線「門真南」駅

物件概要

最終更新日:2025年12月11日

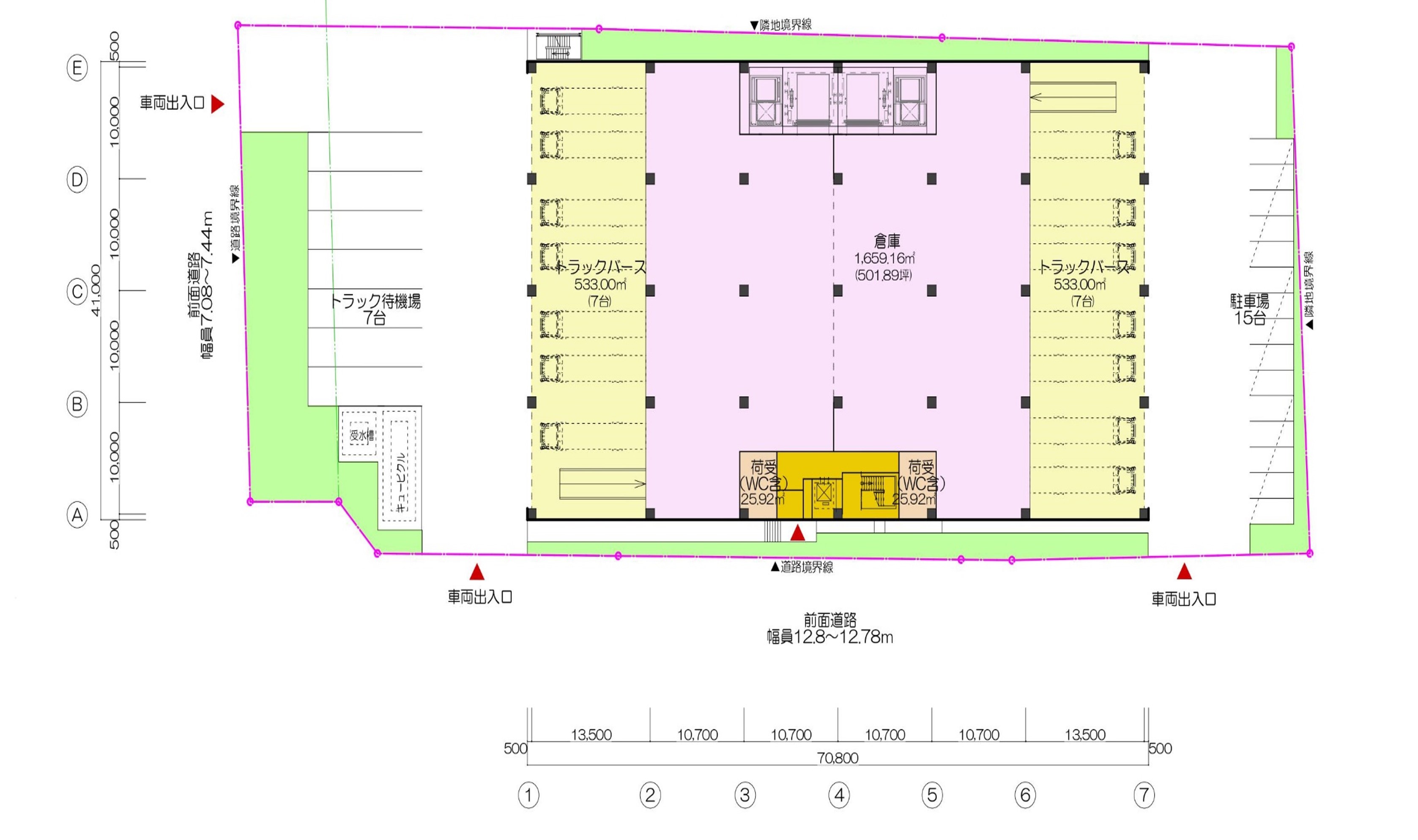
用途
倉庫
所在地
大阪府大東市御領3-7-1
GoogleMap
交通
近畿自動車道  大東鶴見より 約1.00km
学研都市線  住道駅

※交通の距離または徒歩圏内の情報は目安となります。

賃貸階数
相談
賃貸面積
300.00 坪 |991.73 ㎡
月額賃料(税抜)
相談(お問合せください)
引き渡し時期
2026年1月 以降

物件のポイント

  • IC5km以内
  • 大型通行
  • 高床

物件詳細

取引形態
媒介(自社)
建物面積
3,499.97 坪 ( 11,570.15 ㎡)
建物階数
4階建
築年月
2022年07月 (築3年)
都市計画区域/用途地域
工業地域
敷金/保証金
相談
敷引/償却
相談
礼金
相談
備考

設備

荷捌場
天井高
梁下有効高/ 1F:5.5m, 2F:5.5m, 3F:5.5m, 4F:5.5m
床荷重 (t/㎡)
1F:1.50t/㎡, 2F:1.50t/㎡, 3F:1.50t/㎡, 4F:1.50t/㎡
昇降設備
(種類/数×耐荷重kg)
EV(荷物用)/1×4,100kg, 垂直搬送機/1×1,500kg
駐車場
有り

お問い合わせ

※200文字以内で入力してください

※下記の個人情報の取り扱いについて同意した上で送信をしてください

個人情報の取り扱いについて(必ずお読み下さい)

本サービスは、株式会社シーアールイーがお客様からのお問合せや、CREフォーラムの申し込み等を受け付けるものです。ご入力頂いた個人情報は、資料送付、電子メール送信、電話連絡等への利用他、当社の事業や営業活動等の目的で保管します。当社が保管する個人情報の考え方についてはプライバシーポリシーをご覧下さい。

CRE倉庫検索で物件をお探しの方へ

CRE倉庫検索を運営するシーアールイーでは、業界トップクラスのネットワークを活用し、経験豊かなプロフェッショナルが、お客様のご要望に合わせた物件情報のご提案、物件探しをご支援します。

事業用物件を売りたい・貸したい方へ

事業用物件、倉庫や工場、事務所で売りたい・貸したい方、気軽にマスターリースにご相談ください。状況に合わせてご提案させていただきます。

詳細条件で検索

都道府県・
エリア
賃貸面積
  • 範囲で指定
  • 数値で指定
賃料
用途
取引形態
都市計画区域/用途地域
最寄りIC
その他条件