【大阪府大阪市西区】大阪市西区立売堀1丁目140坪倉庫
物件概要
最終更新日:2025年08月20日
- 用途
- 倉庫
- 所在地
-
大阪府大阪市西区立売堀
GoogleMap - 交通
-
阪神高速16号大阪港線 阿波座より 約0.80km
大阪メトロ中央線 本町駅 <徒歩圏内>※交通の距離または徒歩圏内の情報は目安となります。
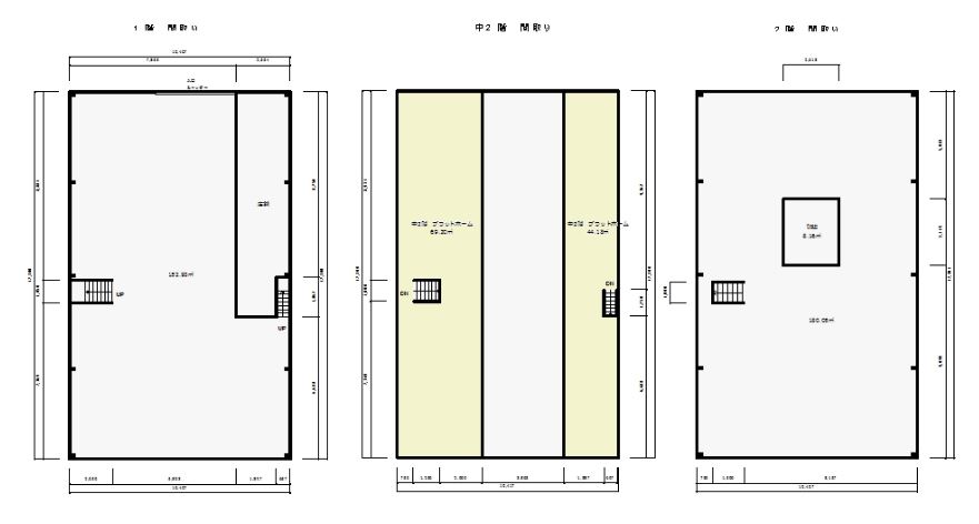
- 賃貸階数
- 1-2階
- 賃貸面積
- 約140 坪 (約450 ㎡)
- 月額賃料(税抜)
-
お問合せください
- 引き渡し時期
-
相談
物件のポイント
- IC5km以内
- 駅徒歩圏
- 空調
物件詳細
- 取引形態
- 媒介(他社)
- 建物面積
- 約140 坪 ( 約450 ㎡)
- 建物階数
- 2階建
- 築年月
- 1970年01月 (築55年)
- 都市計画区域/用途地域
- 商業地域
- 敷金/保証金
- お問合せください
- 敷引/償却
- お問合せください
- 礼金
- お問合せください
- 備考
-
契約形態:定期借家契約
契約年数:10年
設備
―
―
―
―
―
―
●
●
―
―
―
―
- 荷捌場
- -
- 天井高
- -
- 床荷重 (t/㎡)
- -
- 昇降設備
(種類/数×耐荷重kg) - -
- 駐車場
- -
