【大阪府大阪市鶴見区】大阪市鶴見区今津北1丁目240坪工場
物件概要
最終更新日:2025年11月18日
- 用途
- 工場
- 所在地
-
大阪府大阪市鶴見区今津北
GoogleMap - 交通
-
阪神高速13号東大阪線 高井田より 約3.00km
学研都市線 放出駅 <徒歩圏内>※交通の距離または徒歩圏内の情報は目安となります。
- 賃貸階数
- 1-2階
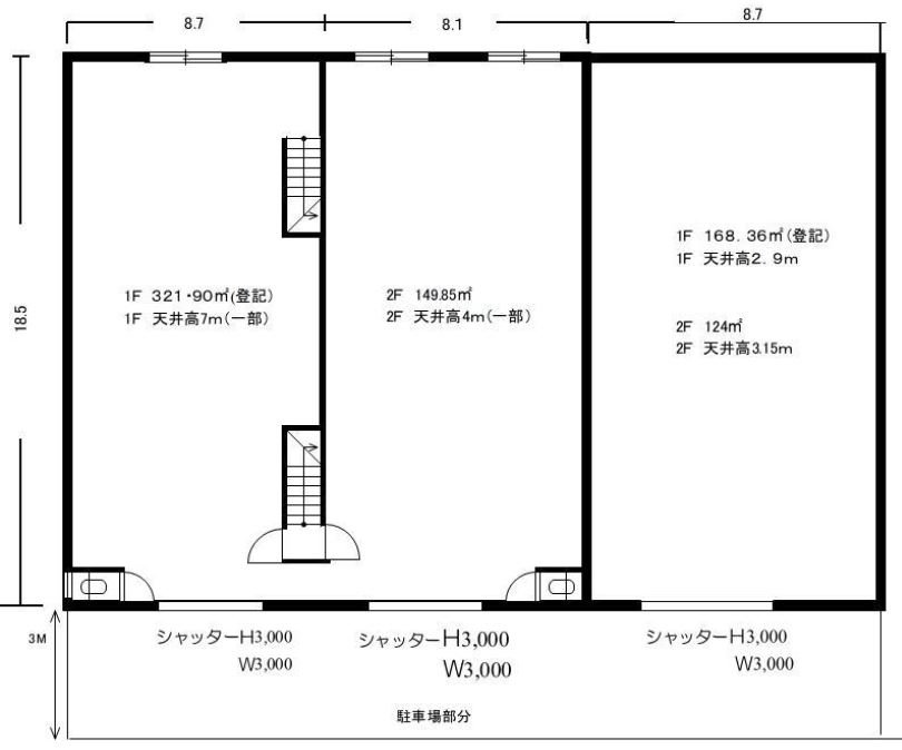
- 賃貸面積
- 約240 坪 (約790 ㎡)
- 月額賃料(税抜)
-
お問合せください
- 引き渡し時期
-
相談
物件のポイント
- IC5km以内
- 駅徒歩圏
物件詳細
- 取引形態
- 媒介(他社)
- 建物面積
- 約240 坪 ( 約790 ㎡)
- 建物階数
- 2階建
- 築年月
- -
- 都市計画区域/用途地域
- 準工業地域
- 敷金/保証金
- お問合せください
- 敷引/償却
- お問合せください
- 礼金
- お問合せください
- 備考
-
契約年数:2年
設備
●
●
―
―
―
―
―
●
―
●
―
―
- 荷捌場
- -
- 天井高
- -
- 床荷重 (t/㎡)
- -
- 昇降設備
(種類/数×耐荷重kg) - -
- 駐車場
- 有り
