【大阪府大阪市生野区】大阪市生野区巽南5丁目170坪倉庫
物件概要
最終更新日:2026年01月15日
- 用途
- 倉庫
- 所在地
-
大阪府大阪市生野区巽南
GoogleMap - 交通
-
阪神高速14号松原線 平野より 約2.30km
大和路線 平野(大和路線)駅 <徒歩圏内>※交通の距離または徒歩圏内の情報は目安となります。
- 賃貸階数
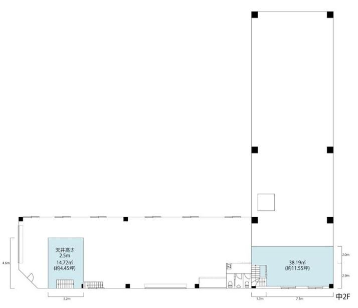
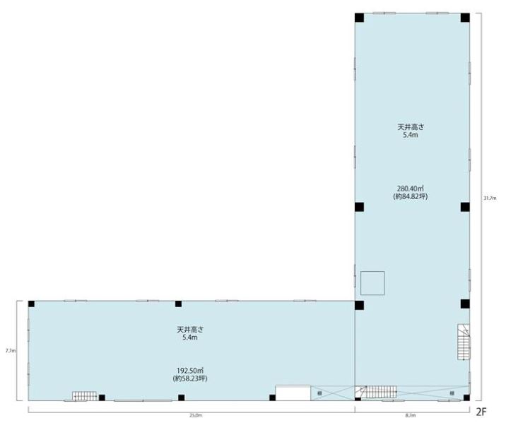
- 1-2階
- 賃貸面積
-
約170 坪 |約560 ㎡
- 月額賃料(税抜)
-
お問合せください
- 引き渡し時期
-
即入居
物件のポイント
- IC5km以内
- 駅徒歩圏
- 即入居可
物件詳細
- 取引形態
- 媒介(他社)
- 建物面積
- 約170 坪 ( 約560 ㎡)
- 建物階数
- 2階建
- 築年月
- -
- 都市計画区域/用途地域
- 準工業地域
- 敷金/保証金
- お問合せください
- 敷引/償却
- お問合せください
- 礼金
- お問合せください
- 備考
設備
―
●
―
―
―
―
―
●
―
●
―
―
- 荷捌場
- -
- 天井高
- 天高/ 1F:3.3m~5.4m, 2F:5.4m
- 床荷重 (t/㎡)
- -
- 昇降設備
(種類/数×耐荷重kg) - リフト/1×1,000kg
- 駐車場
- -
