【埼玉県三郷市】三郷80
※本物件は成約済みです。
物件概要
最終更新日:2023年08月21日
- 用途
- 倉庫
- 所在地
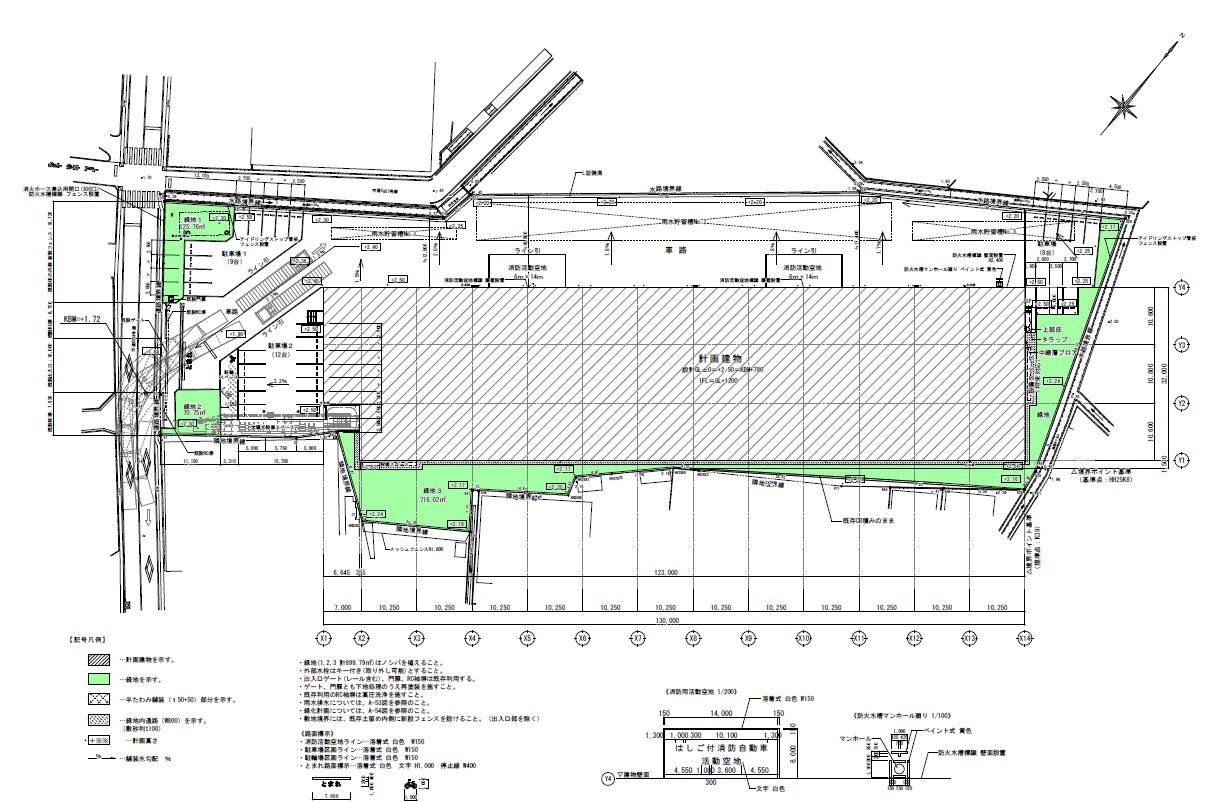
- 埼玉県三郷市高州
- 賃貸面積
-
約2,500 坪 |約8,200 ㎡
物件詳細
- 取引形態
- 貸主
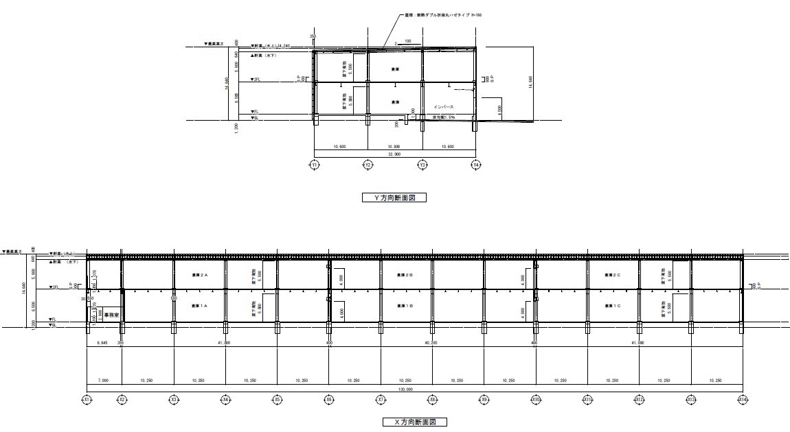
- 建物面積
- 約2,500 坪 ( 約8,200 ㎡)
- 建物階数
- 2階建
- 築年月
- 2023年03月 (築3年)
- 都市計画区域/用途地域
- 準工業地域
設備
●
●
●
―
●
―
―
●
―
●
●
―
- 荷捌場
- 10トン車可
- 天井高
- 梁下有効高/ 1F:5.5m, 2F:5.5m
- 床荷重 (t/㎡)
- 1F:1.50t/㎡, 2F:1.50t/㎡
- 昇降設備
(種類/数×耐荷重kg) - EV(荷物用)/2×3,500kg
- 駐車場
- 有り / 乗用車29台
