【埼玉県越谷市】越谷81
※本物件は成約済みです。
物件概要
最終更新日:2025年07月29日
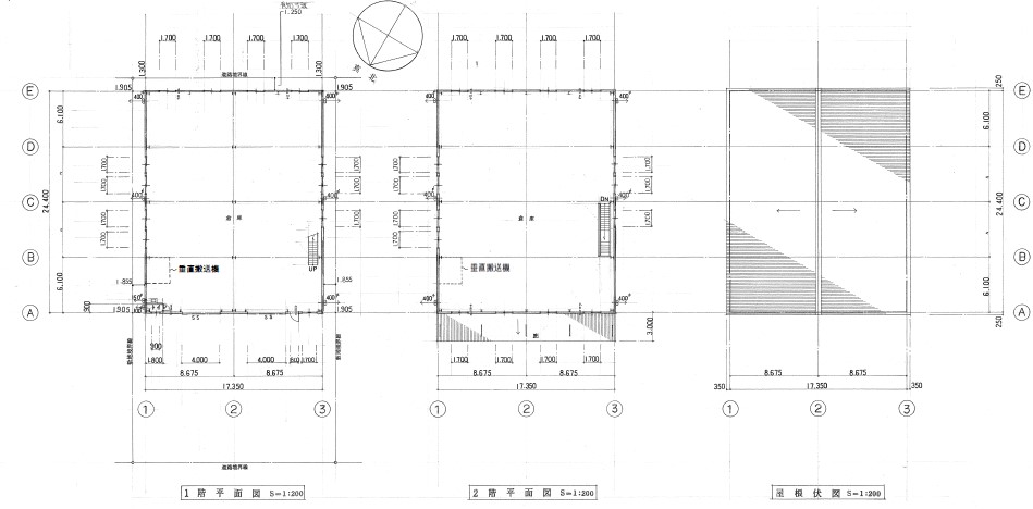
- 用途
- 倉庫
- 所在地
- 埼玉県越谷市東大沢
- 賃貸面積
-
約300 坪 |約800 ㎡
物件詳細
- 取引形態
- 貸主
- 建物面積
- 約300 坪 ( 約800 ㎡)
- 建物階数
- 2階建
- 築年月
- 1992年10月 (築33年)
- 都市計画区域/用途地域
- 第一種中高層住居専用地域
設備
―
●
●
―
―
―
―
●
―
●
●
―
- 荷捌場
- 10トン車可
- 天井高
- -
- 床荷重 (t/㎡)
- -
- 昇降設備
(種類/数×耐荷重kg) - -
- 駐車場
- -
