加須1、加須2
※本物件は成約済みです。
物件概要
最終更新日:2021年05月31日
- 用途
- 工場
- 所在地
- 埼玉県加須市新利根
- 賃貸面積
-
約1,600 坪 |約5,300 ㎡
物件詳細
- 取引形態
- 貸主
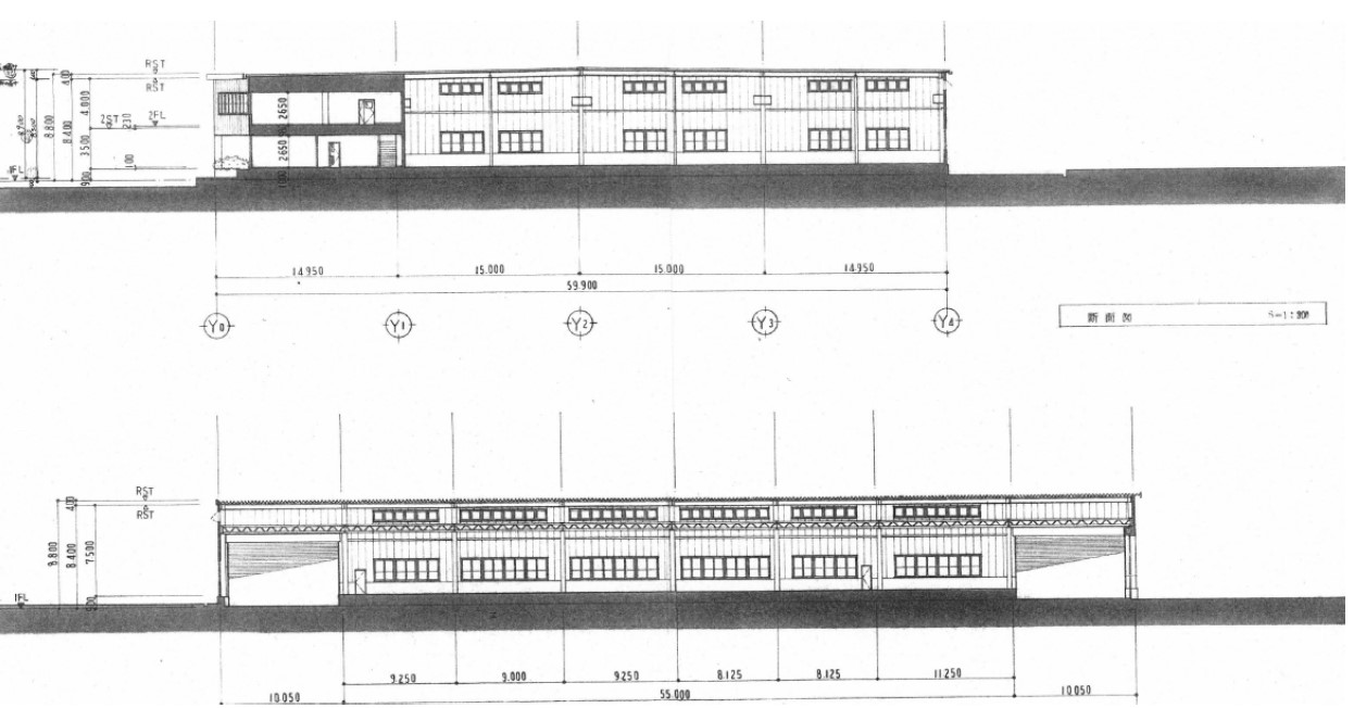
- 建物面積
- 約1,600 坪 ( 約5,300 ㎡)
- 建物階数
- 2階建
- 築年月
- -
- 都市計画区域/用途地域
- 工業地域
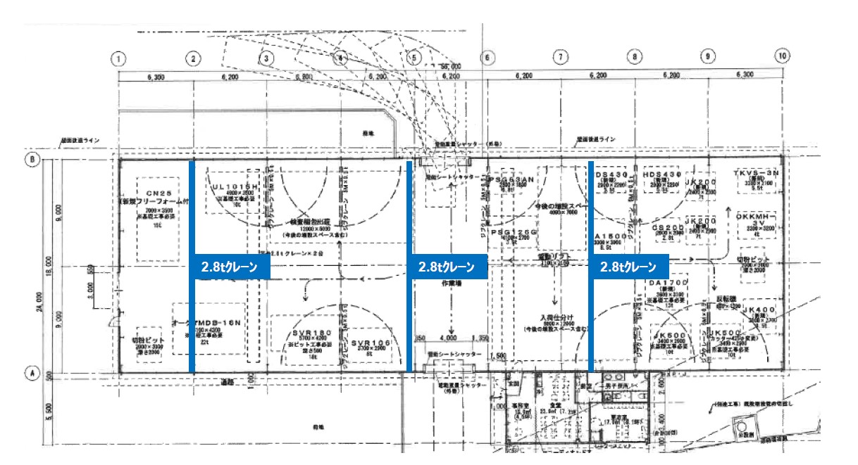
設備
●
●
―
●
●
―
―
―
―
―
―
―
- 荷捌場
- -
- 天井高
- -
- 床荷重 (t/㎡)
- -
- 昇降設備
(種類/数×耐荷重kg) - -
- 駐車場
- -
