【埼玉県春日部市】春日部市小渕230坪倉庫
物件概要
最終更新日:2026年04月06日
- 用途
- 倉庫
- 所在地
-
埼玉県春日部市小渕
GoogleMap - 交通
-
東北自動車道 蓮田スマートICより 約9.20km
東武スカイツリーライン 北春日部駅※交通の距離または徒歩圏内の情報は目安となります。
- 賃貸階数
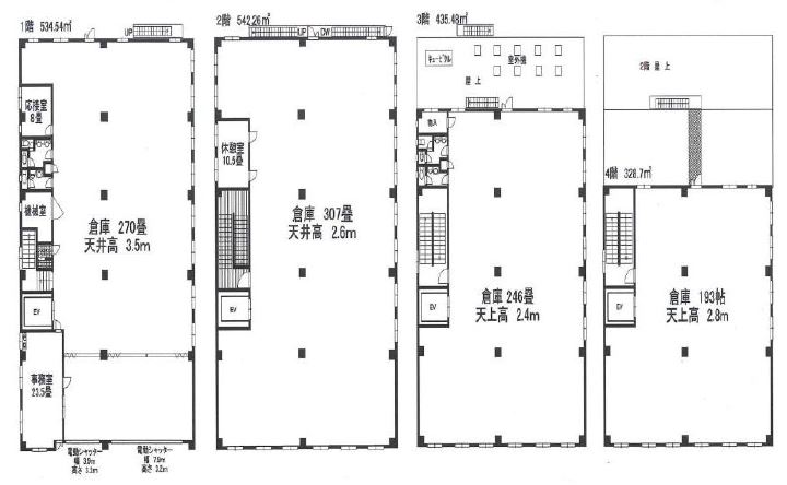
- 3-4階
- 賃貸面積
-
約230 坪 |約760 ㎡
- 月額賃料(税抜)
-
お問合せください
- 引き渡し時期
-
相談
物件のポイント
物件詳細
- 取引形態
- 媒介(他社)
- 建物面積
- - 坪 ( - ㎡)
- 建物階数
- 4階建
- 築年月
- 1993年08月 (築32年)
- 都市計画区域/用途地域
- 準工業地域
- 敷金/保証金
- お問合せください
- 敷引/償却
- お問合せください
- 礼金
- お問合せください
- 備考
-
契約形態:定期借家契約
契約年数:4年
設備
―
●
―
―
―
―
―
●
―
●
―
●
- 荷捌場
- -
- 天井高
- -
- 床荷重 (t/㎡)
- -
- 昇降設備
(種類/数×耐荷重kg) - EV(人荷用)/1
- 駐車場
- 有り / 無料 / 3台
