【埼玉県川越市】川越市大字寺山270坪倉庫
物件概要
最終更新日:2026年04月10日
- 用途
- 倉庫
- 所在地
-
埼玉県川越市
GoogleMap - 交通
-
圏央道 坂戸より 約5.20km
JR川越線 西川越駅※交通の距離または徒歩圏内の情報は目安となります。
- 賃貸階数
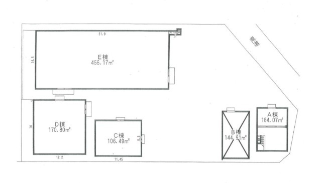
- A棟:1-2階、C・D・E棟:1階
- 賃貸面積
-
約270 坪 |約900 ㎡
- 月額賃料(税抜)
-
お問合せください
- 引き渡し時期
-
即入居
物件のポイント
- 即入居可
物件詳細
- 取引形態
- 媒介(他社)
- 建物面積
- 約270 坪 ( 約900 ㎡)
- 建物階数
- 2階建
- 築年月
- 1971年01月 (築55年)
- 都市計画区域/用途地域
- 市街化調整区域
- 敷金/保証金
- お問合せください
- 敷引/償却
- お問合せください
- 礼金
- お問合せください
- 備考
-
契約年数:3年
設備
●
●
―
―
―
―
―
●
―
●
―
―
- 荷捌場
- -
- 天井高
- -
- 床荷重 (t/㎡)
- -
- 昇降設備
(種類/数×耐荷重kg) - -
- 駐車場
- 有り / 無料
