【埼玉県新座市】新座市馬場4丁目440坪倉庫
おすすめコメント
◆募集面積◆
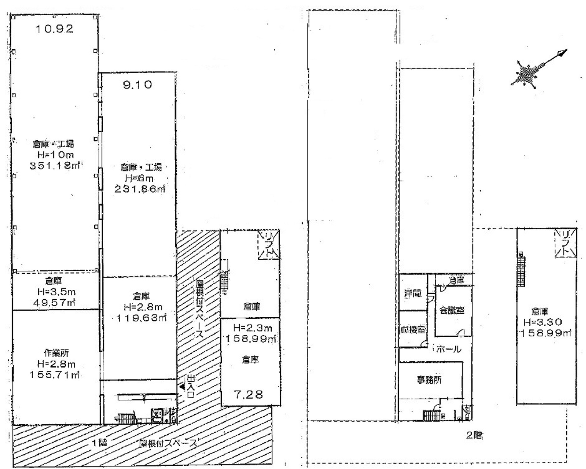
①平屋建 1991年9月築 168.33坪 延床168.33坪
②2階建・事務所付 1991年9月築 1階120.23坪、2階52.85坪 延床173.09坪
③2階建 1993年築 1階48.09坪、2階48.09坪 延床96.18坪
建物面積他に屋根付きスペース約80坪あり
①平屋建 1991年9月築 168.33坪 延床168.33坪
②2階建・事務所付 1991年9月築 1階120.23坪、2階52.85坪 延床173.09坪
③2階建 1993年築 1階48.09坪、2階48.09坪 延床96.18坪
建物面積他に屋根付きスペース約80坪あり
物件概要
最終更新日:2026年02月05日
- 用途
- 倉庫
- 所在地
-
埼玉県新座市馬場
GoogleMap - 交通
-
関越自動車道 大泉JCTより 約4.80km
JR武蔵野線 新座駅※交通の距離または徒歩圏内の情報は目安となります。
- 賃貸階数
- ①1階・②1-2階・③1-2階(3棟)
- 賃貸面積
-
約440 坪 |約1,450 ㎡
- 月額賃料(税抜)
-
お問合せください
- 引き渡し時期
-
相談
物件のポイント
- IC5km以内
物件詳細
- 取引形態
- 媒介(他社)
- 建物面積
- 約440 坪 ( 約1,450 ㎡)
- 建物階数
- -
- 築年月
- 1991年09月 (築34年)
- 都市計画区域/用途地域
- 市街化調整区域
- 敷金/保証金
- お問合せください
- 敷引/償却
- お問合せください
- 礼金
- お問合せください
- 備考
-
契約年数:3年
設備
●
●
―
―
―
―
―
●
●
●
―
―
- 荷捌場
- -
- 天井高
- -
- 床荷重 (t/㎡)
- -
- 昇降設備
(種類/数×耐荷重kg) - -
- 駐車場
- 有り
