- トップ
- 東京都
- 多摩中央・西部エリア
- 府中市
- 【東京都府中市】府中押立倉庫
【東京都府中市】府中押立倉庫
※本物件は成約済みです。
物件概要
最終更新日:2021年10月26日
- 用途
- 倉庫
- 所在地
- 東京都府中市押立町
- 賃貸面積
-
約200 坪 |約700 ㎡
物件詳細
- 取引形態
- 貸主
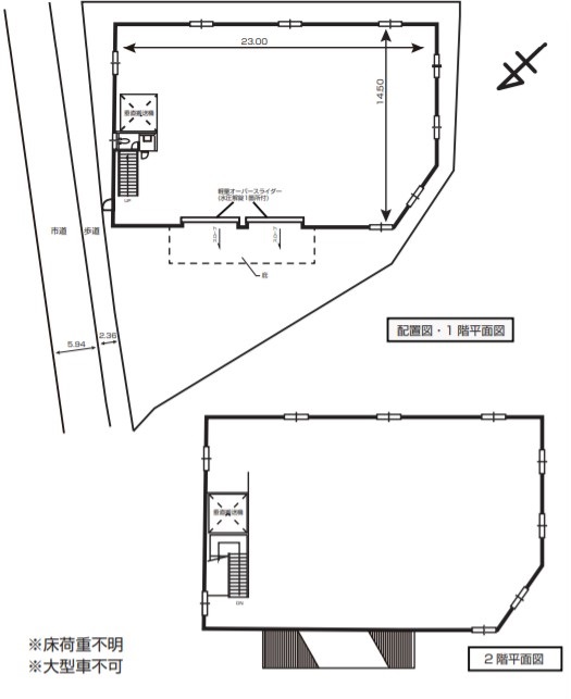
- 建物面積
- 約200 坪 ( 約700 ㎡)
- 建物階数
- 2階建
- 築年月
- 1993年02月 (築33年)
- 都市計画区域/用途地域
- 第一種中高層住居専用地域
設備
―
●
●
―
―
―
―
●
―
―
―
―
- 荷捌場
- 4トン車可
- 天井高
- 天高/ 1F:5.12m, 2F:4.48m
- 床荷重 (t/㎡)
- -
- 昇降設備
(種類/数×耐荷重kg) - 垂直搬送機/1×500kg
- 駐車場
- -
