【東京都江戸川区】江戸川区松江1丁目2617坪倉庫

物件概要

最終更新日:2026年04月16日

用途
倉庫
所在地
東京都江戸川区松江1-6-22
GoogleMap
交通
首都高速7号小松川線  小松川より 約0.40km
JR中央・総武線  新小岩駅

※交通の距離または徒歩圏内の情報は目安となります。

賃貸階数
1-4階
賃貸面積
2,617.45 坪 |8,652.72 ㎡
月額賃料(税抜)
15,966,445円(坪単価@6,100円)
引き渡し時期
即入居

物件のポイント

  • IC5km以内
  • 大型通行
  • 即入居可

物件詳細

取引形態
媒介(他社)
建物面積
2,617.45 坪 ( 8,652.72 ㎡)
建物階数
4階建
築年月
都市計画区域/用途地域
準工業地域
敷金/保証金
相談
敷引/償却
相談
礼金
1ヶ月
備考
契約形態:定期借家契約
契約年数:相談

設備

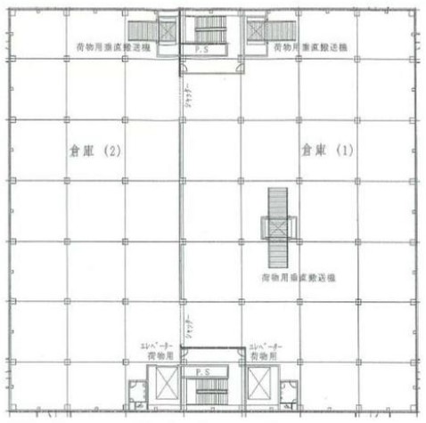
荷捌場
天井高
天高/ 1F:4.8m, 2F:4.2m, 3F:4.2m, 4F:4.2m
床荷重 (t/㎡)
1F:1.36t/㎡, 2F:1.36t/㎡, 3F:1.36t/㎡, 4F:1.36t/㎡
昇降設備
(種類/数×耐荷重kg)
EV(荷物用)/2×3,000kg, 垂直搬送機/2
駐車場
有り / 無料

お問い合わせ

※200文字以内で入力してください

※下記の個人情報の取り扱いについて同意した上で送信をしてください

個人情報の取り扱いについて(必ずお読み下さい)

本サービスは、株式会社シーアールイーがお客様からのお問合せや、CREフォーラムの申し込み等を受け付けるものです。ご入力頂いた個人情報は、資料送付、電子メール送信、電話連絡等への利用他、当社の事業や営業活動等の目的で保管します。当社が保管する個人情報の考え方についてはプライバシーポリシーをご覧下さい。

CRE倉庫検索で物件をお探しの方へ

CRE倉庫検索を運営するシーアールイーでは、業界トップクラスのネットワークを活用し、経験豊かなプロフェッショナルが、お客様のご要望に合わせた物件情報のご提案、物件探しをご支援します。

事業用物件を売りたい・貸したい方へ

事業用物件、倉庫や工場、事務所で売りたい・貸したい方、気軽にマスターリースにご相談ください。状況に合わせてご提案させていただきます。

詳細条件で検索

都道府県・
エリア
賃貸面積
  • 範囲で指定
  • 数値で指定
賃料
用途
取引形態
都市計画区域/用途地域
最寄りIC
その他条件