- トップ
- 東京都
- 多摩中央・西部エリア
- 立川市
- 【東京都立川市】立川市富士見町7丁目110坪倉庫
【東京都立川市】立川市富士見町7丁目110坪倉庫
物件概要
最終更新日:2025年10月29日
- 用途
- 倉庫
- 所在地
-
東京都立川市富士見町
GoogleMap - 交通
-
中央自動車道(本線) 国立府中より 約5.10km
多摩モノレール 柴崎体育館駅※交通の距離または徒歩圏内の情報は目安となります。
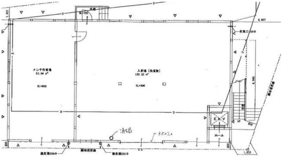
- 賃貸階数
- 1-2階
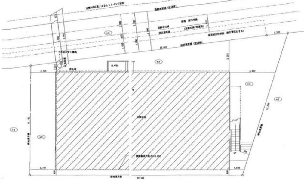
- 賃貸面積
- 約110 坪 (約360 ㎡)
- 月額賃料(税抜)
-
お問合せください
- 引き渡し時期
-
即入居
物件のポイント
- 即入居可
物件詳細
- 取引形態
- 媒介(他社)
- 建物面積
- 約110 坪 ( 約360 ㎡)
- 建物階数
- 2階建
- 築年月
- 2006年01月 (築19年)
- 都市計画区域/用途地域
- -
- 敷金/保証金
- お問合せください
- 敷引/償却
- お問合せください
- 礼金
- お問合せください
- 備考
-
契約年数:5年
設備
―
●
―
―
―
―
―
●
―
●
―
―
- 荷捌場
- -
- 天井高
- -
- 床荷重 (t/㎡)
- -
- 昇降設備
(種類/数×耐荷重kg) - EV(荷物用)/1
- 駐車場
- 有り / 無料 / 1台
