【東京都大田区】大田区仲池上2丁目230坪倉庫
物件概要
最終更新日:2025年10月29日
- 用途
- 倉庫
- 所在地
-
東京都大田区仲池上
GoogleMap - 交通
-
首都高速1号羽田線 鈴ヶ森より 約3.80km
都営浅草線 西馬込駅 <徒歩圏内>※交通の距離または徒歩圏内の情報は目安となります。
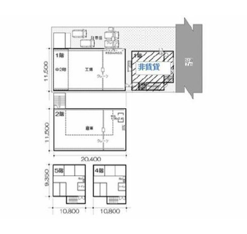
- 賃貸階数
- 1-2階
- 賃貸面積
- 約230 坪 (約760 ㎡)
- 月額賃料(税抜)
-
お問合せください
- 引き渡し時期
-
2025年9月 中旬 以降
物件のポイント
- IC5km以内
- 駅徒歩圏
- 空調
物件詳細
- 取引形態
- 媒介(他社)
- 建物面積
- 約230 坪 ( 約760 ㎡)
- 建物階数
- 2階建
- 築年月
- 1971年03月 (築54年)
- 都市計画区域/用途地域
- 準工業地域
- 敷金/保証金
- お問合せください
- 敷引/償却
- お問合せください
- 礼金
- お問合せください
- 備考
-
契約形態:定期借家契約
契約年数:2年
設備
―
●
―
―
―
―
●
●
―
●
―
―
- 荷捌場
- -
- 天井高
- 天高/ 1F:7.0m, 2F:7.0m
- 床荷重 (t/㎡)
- -
- 昇降設備
(種類/数×耐荷重kg) - -
- 駐車場
- 有り / 無料 / 4台~駐車可
