【愛知県刈谷市】刈谷市小垣江町池上260坪倉庫
物件概要
最終更新日:2026年04月20日
- 用途
- 倉庫
- 所在地
-
愛知県刈谷市小垣江町池上
GoogleMap - 交通
-
知多半島道路 東浦知多より 約8.00km
名鉄三河線 小垣江駅 <徒歩圏内>※交通の距離または徒歩圏内の情報は目安となります。
- 賃貸階数
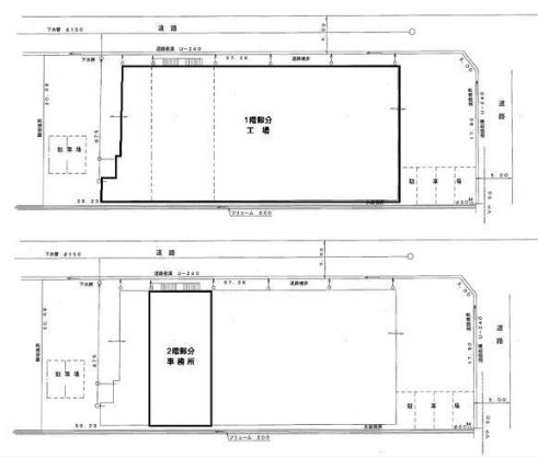
- 1-2階
- 賃貸面積
-
約260 坪 |約850 ㎡
- 月額賃料(税抜)
-
お問合せください
- 引き渡し時期
-
相談
物件のポイント
- 駅徒歩圏
物件詳細
- 取引形態
- 媒介(他社)
- 建物面積
- 約260 坪 ( 約850 ㎡)
- 建物階数
- 2階建
- 築年月
- 1982年01月 (築44年)
- 都市計画区域/用途地域
- 市街化調整区域
- 敷金/保証金
- お問合せください
- 敷引/償却
- お問合せください
- 礼金
- お問合せください
- 備考
-
契約年数:2年
設備
●
●
―
―
―
―
―
●
―
●
―
―
- 荷捌場
- -
- 天井高
- -
- 床荷重 (t/㎡)
- -
- 昇降設備
(種類/数×耐荷重kg) - -
- 駐車場
- 有り
