【神奈川県厚木市】中津81
※本物件は成約済みです。
物件概要
最終更新日:2025年03月21日
- 用途
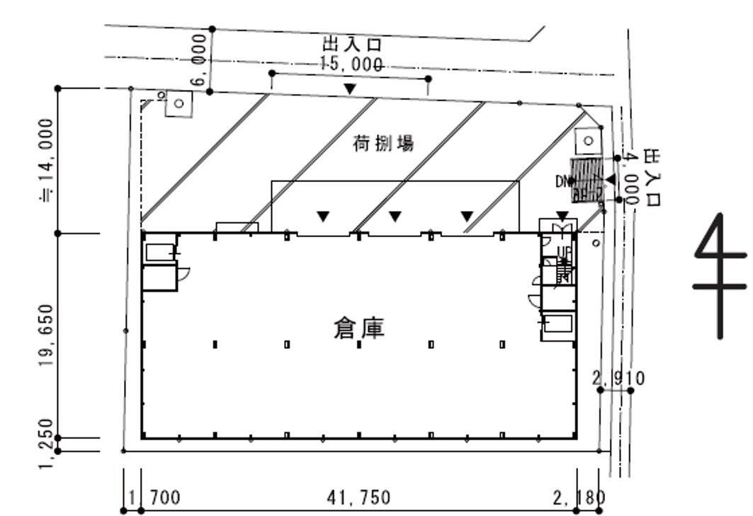
- 倉庫
- 所在地
- 神奈川県厚木市山際
- 賃貸面積
-
約500 坪 |約1,600 ㎡
物件詳細
- 取引形態
- 貸主
- 建物面積
- 約500 坪 ( 約1,600 ㎡)
- 建物階数
- 2階建
- 築年月
- 1992年12月 (築33年)
- 都市計画区域/用途地域
- 第一種住居地域
設備
―
●
―
―
―
―
―
●
―
●
―
―
- 荷捌場
- -
- 天井高
- -
- 床荷重 (t/㎡)
- 1F:0.75t/㎡, 2F:0.75t/㎡
- 昇降設備
(種類/数×耐荷重kg) - EV(荷物用)/2×980kg
- 駐車場
- -
