【神奈川県横須賀市】横須賀市根岸町4丁目150坪倉庫
おすすめコメント
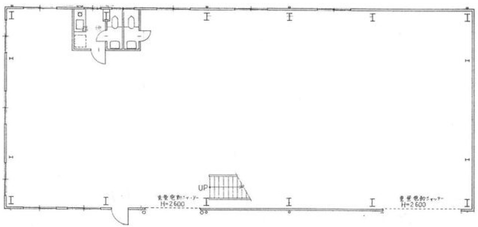
1階82.32坪、2階64.68坪
物件概要
最終更新日:2025年10月03日
- 用途
- 倉庫
- 所在地
-
神奈川県横須賀市根岸町
GoogleMap - 交通
-
横浜横須賀道路 佐原より 約2.50km
京急久里浜線 北久里浜駅 <徒歩圏内>※交通の距離または徒歩圏内の情報は目安となります。
- 賃貸階数
- 1-2階
- 賃貸面積
- 約150 坪 (約490 ㎡)
- 月額賃料(税抜)
-
お問合せください
- 引き渡し時期
-
2025年12月 上旬 以降
物件のポイント
- IC5km以内
- 駅徒歩圏
物件詳細
- 取引形態
- 媒介(他社)
- 建物面積
- 約150 坪 ( 約490 ㎡)
- 建物階数
- 2階建
- 築年月
- 1987年11月 (築38年)
- 都市計画区域/用途地域
- 第一種中高層住居専用地域
- 敷金/保証金
- お問合せください
- 敷引/償却
- お問合せください
- 礼金
- お問合せください
- 備考
-
契約形態:普通借家契約
契約年数:3年
設備
―
●
―
―
―
―
―
●
―
●
―
―
- 荷捌場
- -
- 天井高
- -
- 床荷重 (t/㎡)
- -
- 昇降設備
(種類/数×耐荷重kg) - -
- 駐車場
- 有り / 10台可
