【埼玉県さいたま市岩槻区】岩槻80
※本物件は成約済みです。
物件概要
最終更新日:2025年09月29日
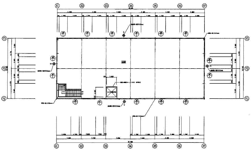
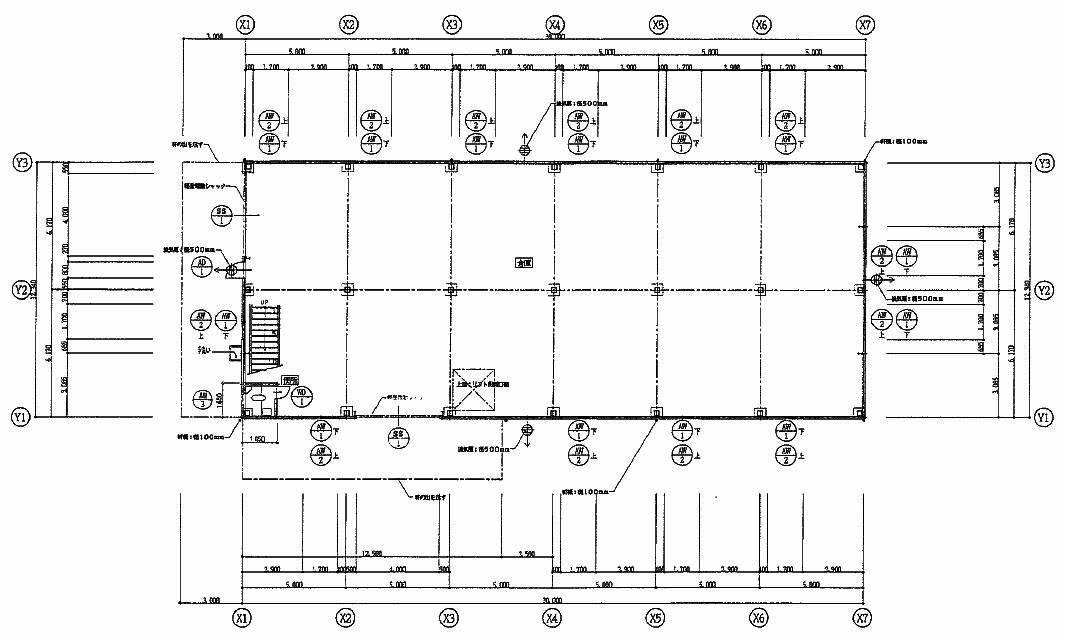
- 用途
- 倉庫
- 所在地
- 埼玉県さいたま市岩槻区上野
- 賃貸面積
-
約200 坪 |約700 ㎡
物件詳細
- 取引形態
- 貸主
- 建物面積
- 約200 坪 ( 約700 ㎡)
- 建物階数
- 2階建
- 築年月
- 1992年04月 (築33年)
- 都市計画区域/用途地域
- 工業地域
設備
―
●
●
―
―
―
―
●
―
●
●
●
- 荷捌場
- 10トン車可
- 天井高
- 天高/ 1F:5m, 2F:3.5m
- 床荷重 (t/㎡)
- 2F:0.75t/㎡
- 昇降設備
(種類/数×耐荷重kg) - -
- 駐車場
- -
