【埼玉県さいたま市岩槻区】岩槻1
※本物件は成約済みです。
物件概要
最終更新日:2025年05月20日
- 用途
- 倉庫
- 所在地
- 埼玉県さいたま市岩槻区掛
- 賃貸面積
-
約100 坪 |約400 ㎡
物件詳細
- 取引形態
- 貸主
- 建物面積
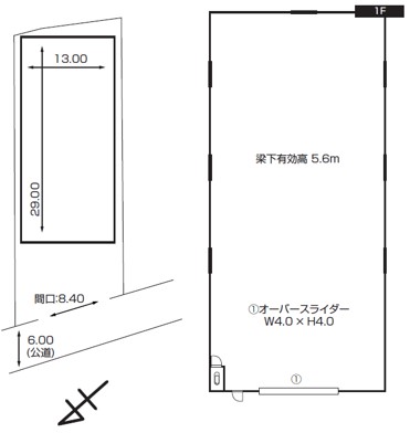
- 約100 坪 ( 約400 ㎡)
- 建物階数
- 平屋建
- 築年月
- 1991年09月 (築34年)
- 都市計画区域/用途地域
- 工業地域
設備
―
●
―
―
―
―
―
●
―
●
―
―
- 荷捌場
- -
- 天井高
- -
- 床荷重 (t/㎡)
- -
- 昇降設備
(種類/数×耐荷重kg) - -
- 駐車場
- -
